Temporary Culinary Spaces with Restrooms and Dining
Temporary Culinary Spaces with Restrooms and Dining
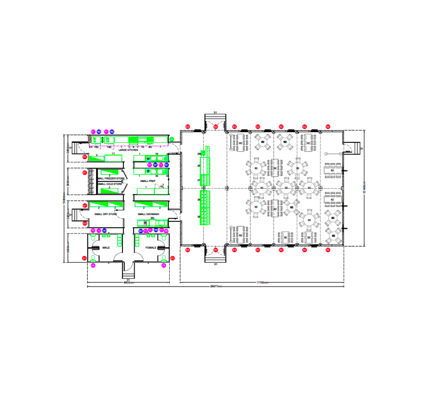
Discover our Temporary Culinary Spaces with Restrooms and Dining, featuring advanced warewashing, fully-equipped prep kitchen, walk-in fridge, freezer, and dry room.
Tailored for diverse culinary needs, ensuring unparalleled functionality and efficiency.
Please note, automated pricing is unavailable. Our dedicated team is ready to provide quotes and assistance, ensuring your temporary kitchen aligns perfectly with your specific requirements.
Enter ‘hire start’ and ‘hire end’ dates on the calendar below to get a budget hire rate cost for this product. Repeat the process if you want to check different hire periods.





